你的位置:开云体育(中国)官方网站 - 开云 SPORTS > 新闻中心 > kai云体育app官方下载在好意思不雅和舒畅方面-开云体育(中国)官方网站 - 开云 SPORTS
kai云体育app官方下载在好意思不雅和舒畅方面-开云体育(中国)官方网站 - 开云 SPORTS
时间:2026-01-26 02:32 点击:72 次


小宅空间kai云体育app官方下载
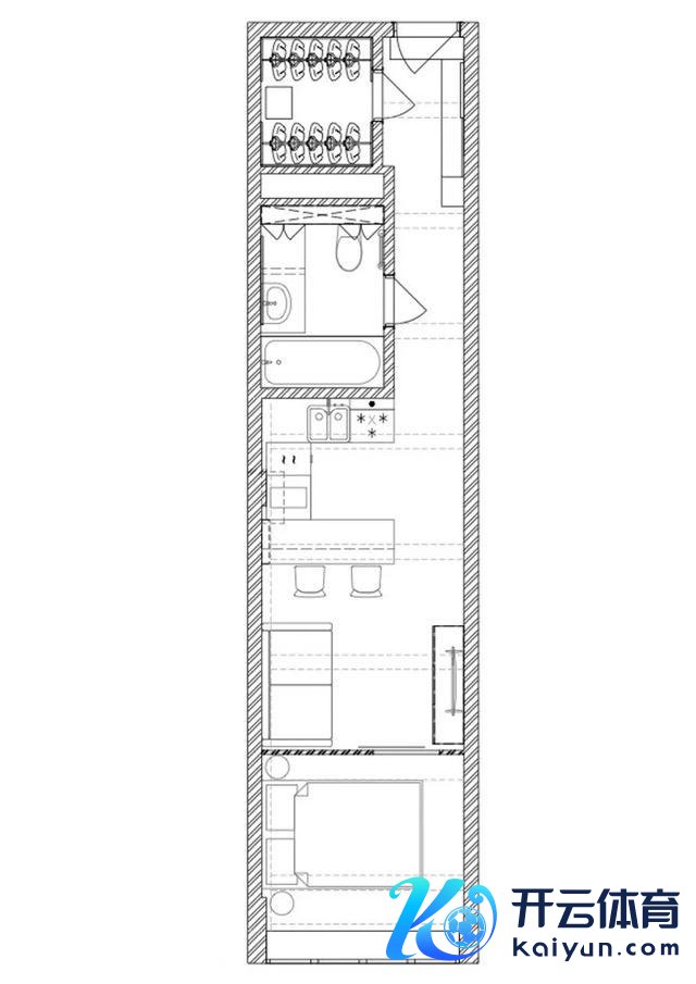
Ekaterina Proskurina新作,一位50岁大姨的32㎡小宅,心爱管待她的一又友和小孙女。因此,在一个褊狭的空间里,需要筹画极端多的功能区域:舒畅的厨房、休息的场合、睡眠的场合。在好意思不雅和舒畅方面,但愿领有一个与优质货仓的房间相似的空间。

从走廊区域运行,左边是吞并个更衣室和浴室。然后沿着走廊有一间浴室和一间带厨房的房间,仅仅用窗户将卧室离隔,收受了滑动玻璃间隔进行分区。


带有字母“P”的厨房是单间公寓最奏凯的搞定决策之一。一方面,有一个无缺的厨房旯旮,与其他区域分开。另一方面,这样的厨房看起来并不局促。


吧台具有多种功能:它取代了餐桌(相配允洽小公寓),看成特等的责任名义并将厨房与客厅分开。这里有需要的一切:从带罩的烤箱到雪柜和洗碗机。



卧室区域由玻璃间远隔隔;如有需要,可以放下卷帘。沙发可以折叠起来。



在褊狭的空间里收受巨型花朵并不是巧合的。领先,它们创造了必要的对比和舒畅感。其次,他们或者把卧室变得更大了。在这样小的公寓里以致还有一个放电视的场合(还有一个抽屉柜)。



心爱带有如斯大块开放洋蓟图案的壁纸吗?我果真很心爱它!关于强调墙来说,这是一个可以的收受。



在我看来,公寓的面积取得了相配有用的期骗。相配允洽一个东说念主。

平面布局

本体磋议 / 米兰筹画之旅
未经允许,请勿转载

